Products
WJ-2.5 underground loaders are mainly used in underground mine tunnels to shovel and transport loose materials after blasting. It can also be used in tunnel projects such as railways, highways and water conservancy projects, and is suitable for tunnel operations with medium cross-sections above 3.0 m×3.0 m.
Advantages and features
●Underground loaders use Cummins National III low-speed, high-torque, water-cooled, low-pollution engine. It has low fuel consumption, simple and reliable operation, and easy maintenance. The exhaust system is equipped with an exhaust silencer purifier, which greatly reduces air pollution.
●The transmission system adopts a gearbox torque converter, a spring-brake hydraulic release drive axle, mining-resistant cut-resistant pneumatic tires, and four-wheel drive. It has high transmission efficiency, safe braking, high reliability, and long tire life;
●The main hydraulic parts are all from well-known brands at home and abroad, such as MICO filling valve, brake valve with stable performance and safe and reliable operation;
●The whole machine has a central articulated structure, and the frame and the rear drive axle are connected by a swing frame to improve the adhesion performance of the whole vehicle. The optimized working device and full hydraulic steering ensure flexible work and high operating efficiency.
●The working hydraulic pressure and steering hydraulic pressure adopt a combined system, which has high working efficiency and good reliability.
●All main pins of the scraper have adopted heat treatment such as high-frequency quenching, which greatly improves the reliability of the pins.
●All hydraulic hoses and cables in the machine are covered with flame-retardant sheathing tubes and wax tubes to prevent fires caused by various oil products splashing after the hydraulic hoses and diesel pipes rupture.



Product parameters
Load capacity 5,000 kg
Bucket capacity 2.5 m3
Speed 0-15 km/h
Maximum grade ability (overload) 25%
Maximum bucket force ≥ 100 kN
Maximum traction force ≥ 110 kN
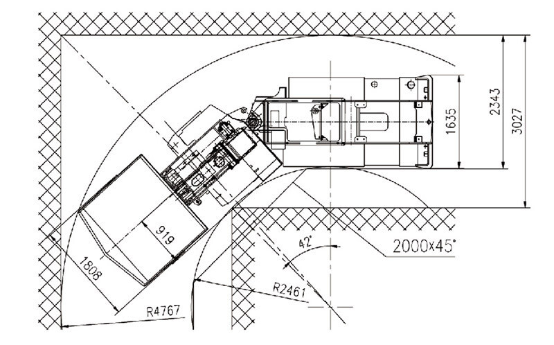
Turning radius 5,800 mm
Maximum dump height 1,950 mm
Minimum dump distance 1,024 mm
Steering angle ±40°
Minimum ground clearance 300 mm
Dimensions (L×W×H) 8,000 × 1,900 × 2,250 mm
Operating weight 14,500 kg
PRODUCT

First class quality service and professional after-sales team.
In order to provide you the suitable machine , pls offer below message for us
》What is the workpiece? What material does it made of? and shape ?
》The Max. Length/Width/Height of the workpiece
》The Max./Min.Weight of the workpiece
》The output of blasting ( how many tons or pcs per day)
》The power supply ( China :380V, 3PH, 50HZ)
》Better to send us the workpiece photo or drawing.
*We respect your confidentiality and all information are protected.